18
  • Property Type
  • Apartment, Penthouse
  • 2
  • Bedrooms
  • 2
  • Bathrooms
  • 2
  • Garages
  • 74,5 m2
  • Area Size
  • 2024
  • Year Built

Privat Rooftop Pool and Palma Harbor Views

  • From €211,000/7 weeks

Description

Stylish 2-Bedroom Penthouse with Rooftop Oasis in Son Armadams, Palma (Choose weeks here)

This elegant penthouse combines Mallorca sophistication and Scandinavian design with a unique sense of privacy rarely found in Palma. Situated in the sought-after neighborhood of Son Armadams, it offers a perfect balance between city life and tranquility—only minutes from Bellver Forest, Santa Catalina, and Paseo Marítimo.

Private Rooftop Living

The crown jewel of this residence is its private rooftop terrace, a true open-air sanctuary. Designed and furnished by Slettvoll, known for timeless Nordic elegance, this rooftop becomes an extension of the living space itself.

A new pergola structure defines the area, offering shade and comfort, while the fully equipped outdoor kitchen—complete with a large built-in barbecue and generous counter space—creates a seamless setting for outdoor dining and entertaining. Together, these elements transform the rooftop into a stylish outdoor living and dining room, perfect for hosting guests or enjoying quiet evenings with a view.

A 14 m² covered terrace on the main level complements the 74 m² rooftop terrace, bringing the total outdoor area to 87 m²—seamlessly integrated with 74 m² of refined interior space. Every element has been curated to celebrate Mallorca’s year-round sunshine and relaxed Mediterranean rhythm.

Elegant Interiors

Inside, Slettvoll’s signature design continues, combining soft textures, natural tones, and modern luxury. Premium porcelain stone-style flooring, ambient lighting, and floor-to-ceiling windows flood the apartment with natural light and connect the indoors with the terraces.

Comfort is ensured through underfloor heating, integrated air-conditioning, and a KNX smart home system for effortless control of temperature, lighting, and security.

The Porcelanosa kitchen features top-brand appliances, a built-in wine cooler, and elegant finishes—ideal for both everyday living and sophisticated entertaining.

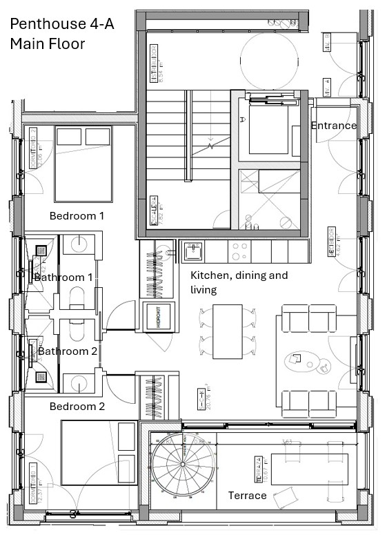
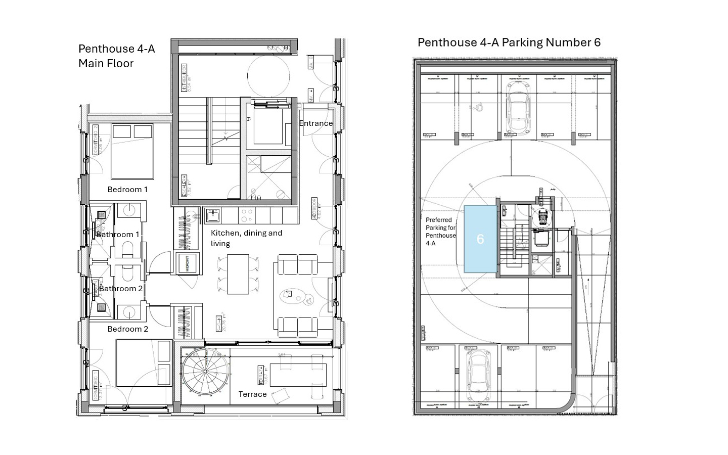
Bedrooms & Bathrooms

Two well-proportioned bedrooms and two designer bathrooms offer refined privacy and calm. Bathrooms feature:

  • Frameless glass shower enclosures
  • LED-lit mirrors with warm ambient lighting
  • Solid surface washbasins and natural wood cabinetry

Comfort & Convenience

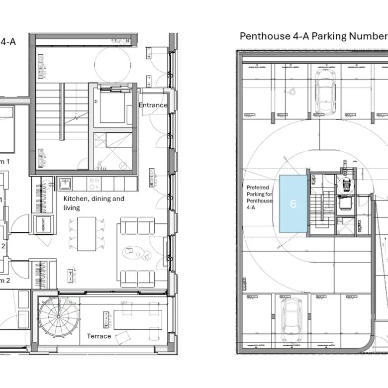
This property includes a 13 m² private storage room with Miele washer and dryer, and one underground parking space equipped with an electric car charging station. Residents also enjoy access to the development’s shared gardens and serene community pool, adding another layer of comfort and exclusivity.

Key Highlights

  • 2 Bedrooms / 2 Bathrooms
  • Rooftop terrace designed by Slettvoll with private plunge pool
  • New pergola and outdoor kitchen with large barbecue
  • 14 m² covered balcony + 74 m² rooftop terrace (87 m² outdoor space total)
  • Porcelanosa finishes and high-end kitchen with wine cooler
  • Underfloor heating, air-conditioning, and KNX smart system
  • 13 m² private storage with Miele washer & dryer
  • 1 underground parking space with EV charger
  • Shared gardens and community pool
  • Premium location next to Bellver Park and Santa Catalina

 

The Area – Son Armadams

The penthouse sits in Son Armadams, one of Palma’s most desirable and balanced neighborhoods. Framed by Bellver Forest and Santa Catalina, it’s a peaceful, tree-lined area that feels residential yet connected to everything.
Read more about the neighborhood here.

How Co-Ownership Works

At Mallorca Homebase, you can buy your dream home in flexible 5-week ownership blocks, giving you real property rights in a Mallorca-based company that owns the home.
Learn more about how co-ownership works.
Visit our FAQ section.

  • Address: 5A, Avinguda de Joan Miró, Son Armadans, Palma, Illes Balears, 07014, España
  • City: Palma de Mallorca
  • State/county: Mallorca
  • Zip/Postal Code: 07014
  • Area: Son Armadams
  • Country: Spain

Details

Updated on October 22, 2025 at 10:35 am
  • Property ID Homebase 2
  • Price From €211,000/7 weeks
  • Property Size 74,5 m2
  • Land Area 87 m2
  • Bedrooms 2
  • Bathrooms 2
  • Garages 2
  • Garage Size 13
  • Year Built 2024
  • Property Type Apartment, Penthouse
  • Property Status For Co-Ownership

Floor Plans

Video

Contact Information

View Listings
Amy Baillargeon

Enquire About This Property

Compare listings

Compare